Headwater Hotel

 
 

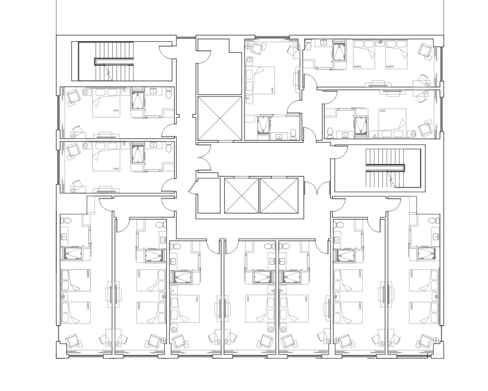
Located on the southwest corner of an existing parking lot at the edge of this historic Eastern Shore town, the 180 foot tall Salisbury Hotel (which will be under the Tapestry by Hilton portfolio) will serve as a catalyst for higher density development. Acting as Phase 1 of a multi-phased mixed-use site, to include structured parking, retail and market rate apartments, the hotel will fulfill a regional need for an elevated hospitality venue. Including a significant ballroom space, meeting rooms, a pool (directly overlooking Calvert Street), and a roof top restaurant with expansive views of the city and Wicomico River, this 110 key hotel will be unlike anything nearby outside of boutique urban hotels found in Washington, DC, Philadelphia and New York City.

 

Location
Salisbury, MD

Area
90,000 SF

Amenities

Restaurant

Ballroom

Retail

Meeting Rooms

Pool

Parking

 
 
 
 
 
 
 
 
 

EXISTING

Previous
Previous

Lighthouse Point Marina Boaters Lounge

Next
Next

George Washington University Cancer Wellness Center